4
Beds
3
Baths
7,961
Total Square Feet
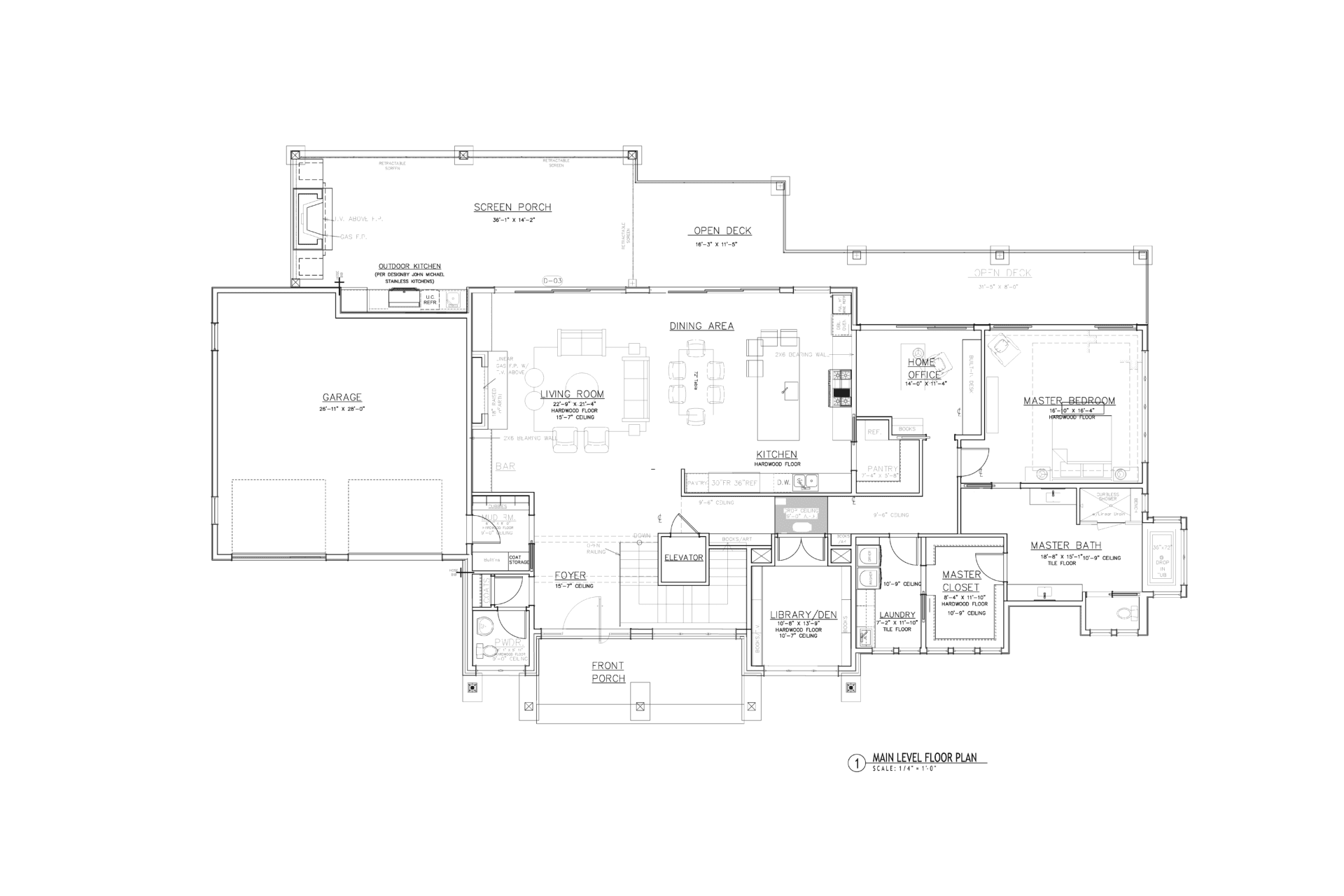
Southcliff Horizon – A Modern Mountain Home in WNC
Southcliff Horizon is a luxury modern prairie home in the North Carolina community of Southcliff, designed for those who want the perfect balance of contemporary architecture, natural beauty, and long-term livability. Built by Living Stone Design + Build, North Carolina’s award-winning custom home builder, and designed by ID.ology Interiors & Design, with decor by Atelier Maison & Co., this residence is a showcase of craftsmanship, health-focused construction, and timeless style.
Modern Mountain Architecture in the Blue Ridge
From the outside, Southcliff Horizon makes a bold statement. The home features:
- Natural stone and warm wood siding that ground the home in its mountain setting
- Expansive windows and walls of glass framing sweeping views of the Blue Ridge Mountains
- A standing-seam metal roof and heavy timber details that enhance durability and modern style
This seamless mix of natural materials and modern lines creates a home that belongs to its mountain environment while reflecting forward-thinking design.
Custom Living Spaces Built for Connection
Recreation and Relaxation on Every Level
Admire Architecture and Style
In The Collaborative Living Magazine
This magazine showcases the design behind our award winning homes. It is the perfect inspiration for your new build or renovation. Pick out the best finishes, or take it to an architect for your next project.
