DESIGN + BUILD | Pre-Designed Plans

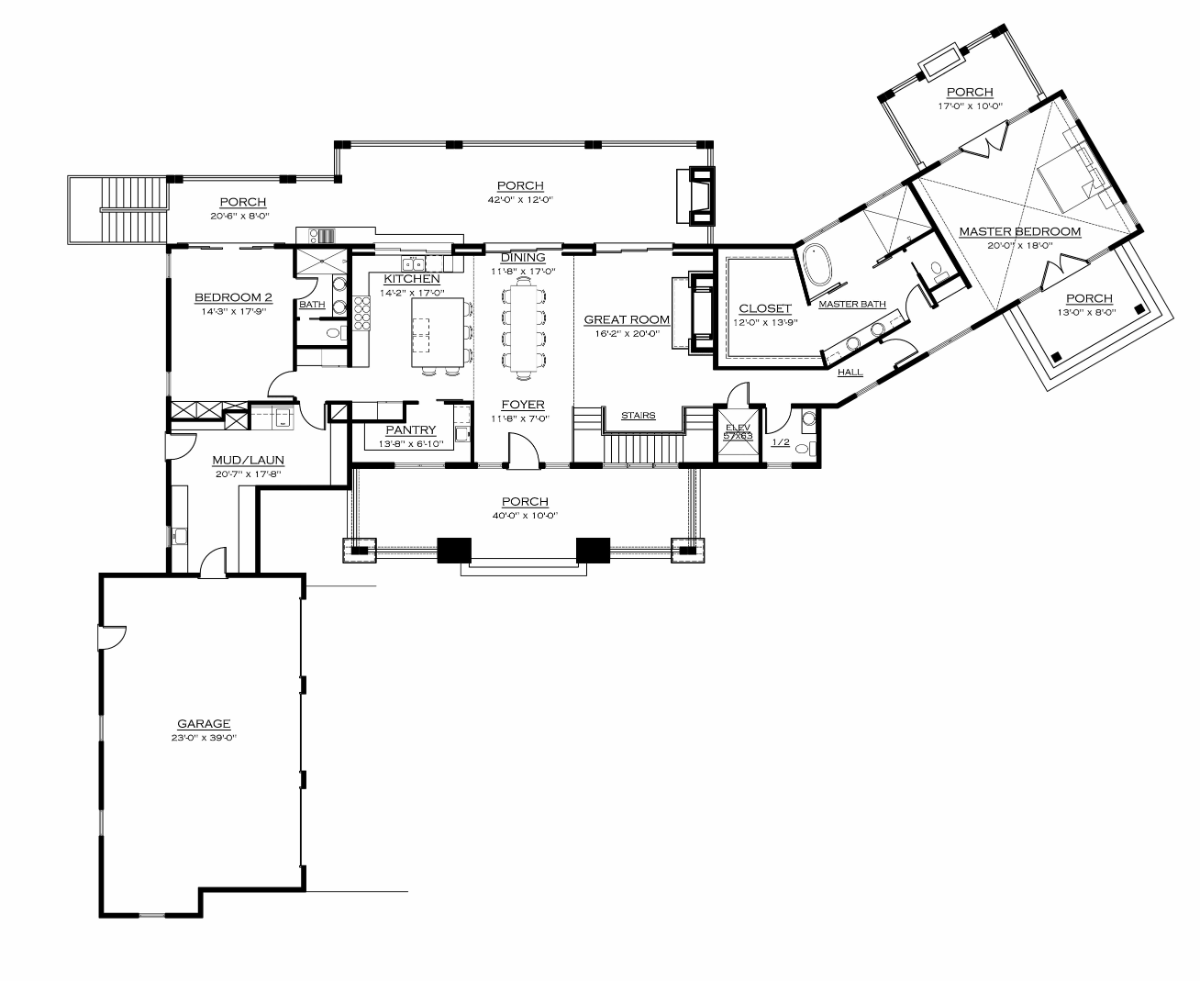
The Ivory

With two primary suites on the main level, and an expansive lower level. The Ivory is both an aging-in-place, and family-time home.

Primary suites at opposite ends of the home allow for privacy. A large kitchen and dining room, along with pantry and mud/laundry room offer functionality, while the great room opens to large outdoor living areas. The largest primary suite has private porches on both sides, and its own hallway.

The lower level encompasses two bedrooms and two bathrooms, along with den with its own fireplace. There is even an elevator for ease of access, and ample room for future expansion if needed. the lower level has its own covered porch, with opportunities for all weather outdoor entertaining.

With an exterior that features arches, gables, and welcoming covered porches, The Ivory exemplifies gracious living at its best, while providing for all generations of the family through the years.

Specifications

Lower Level SQFT: 1,796
Main Level Heated SQFT: 2,856
Car Garage SQFT: 924
Covered Porch SQFT: 2,034
Unfinished Space SQFT: 974