Living Stone Design + Build
  • About
    • Team
    • Blog
    • Press
    • Giving Back
    • Our Book
  • Our Work
    • Communities
    • Awards
    • Accreditations
    • Testimonials
  • Residential Portfolio
    • Custom Homes
    • Pre-Designed Homes
    • Renovations
  • Commercial Portfolio
  • Services
    • Preventative Maintenance Program
    • Custom Care Plan
    • Restorations
  • Start Your Journey
Select Page

DESIGN + BUILD | Pre-Designed Plans

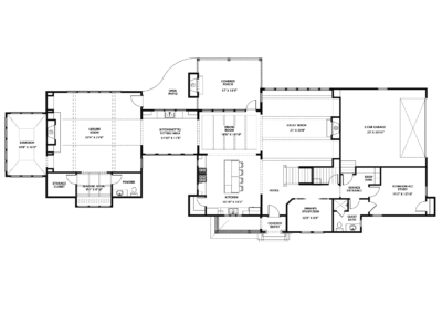
Tucker



Download the Floor Plan

Rated #1 Custom Home Builder in North Carolina

Let’s Bring Your Vision to Life

We’d love to hear about your dream home. Share your vision with us, and our Custom Home Advisor will walk with you every step of the way, making the process seamless and inspiring.

Start Your Journey

Navigate

About us

Careers

Contact

Privacy Policy

The Sullivan Family of Companies

Atelier Maison & Co

ID.ology Interiors & Design

Living Stone Design + Build

Collaborative Living Magazine

Asheville Design District

Our Location

121 Sweeten Creek Rd. Ste. 70
Asheville, NC 28803


855.720.2435

Contact Form

© 2026 All Rights Reserved By Living Stone Design + Build

  • Follow
  • Follow
  • Follow